问题提出:
锅炉燃用不同的燃料,对是否需要布置吹灰器及数量是密切相关的,燃料的含灰量是直接影响吹灰器形式和数量的重要因素,尤其是选用褐煤的机组,当灰中钠含量达到4~5%以上时,采用蒸汽吹灰就不起作用了,有的锅炉燃用的褐煤其灰中Na2O的含量最小1%,最大可达12%, 导致水冷壁上结渣不断加重,结渣厚度达到50~150mm左右,渣层逐渐向上延伸,直到整个炉膛的水冷壁被覆盖。由于炉内吸热量减少,炉膛出口烟温大幅度增高,最后导致对流管束内堵灰,被迫停炉。
应用案例:
中国内蒙古元宝山发电厂装机3x660MW燃煤锅炉,由于采用当地高碱褐煤,灰份中Na2O的含量较高,水冷壁上的结渣厚度达100mm以上,采用我公司生产配套的RLD/FSB40W型水力吹灰器,装于水冷壁上。
详见图 ① 所示

Figure 1 : Water sootblowers for boiler No2 in Yuanbaoshan Power Station
水力吹灰器的技术参数:
型号:RLD/FSB40W
行程:400mm
吹扫介质:≤40°C 化学处理水
吹扫压力:0.8~1.5 Mpa
吹灰枪管转速:2.81 / 8.6 rpm
移动速度:56/173mm / min
介质耗量: 50~100 kg / min
喷嘴喉径:Φ5.0~7.0 mm
电机功率与转速: 0.13 / 0.37 KW 2850/950 rpm
外形尺寸:1010x416x780mm
重量:≈180 kg
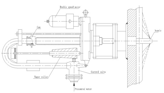
吹灰原理与过程:
该吹灰器采用双速电机驱动,电机启动即以高速运转,凸轮随螺纹管快速前移,在接近锥体滚筒时,电机由变速控制器切换成低速,此时凸轮慢速旋转压下滚筒,将控制阀门打开,压力水经吹灰枪头的喷嘴喷出,对水冷壁进行吹扫,凸轮继续前移,触动前行程开关,电机快速逆转,螺纹管快速旋转退回到起始位置,压下后行程开关,动作停止(详见图②所示)。阀门也随凸轮滚筒的脱离早已关闭,吹灰器就完成一个工作周期。由于采用锥体滚筒,控制阀门的开启量随吹灰器枪管的前进逐渐增加,吹扫面积也逐渐加大,即能满足吹灰效果,又不损坏水冷壁表面。
喷嘴的吹扫轨迹如同阿基米德线(详见图③所示)。
详细图—


运行控制:
每班吹扫一次,在吹扫范围内的100mm厚的大片焦渣全部吹扫掉,提高了效率。
根据结渣厚度不同,选择不同的吹扫压力,对于渣层厚达50mm以下,吹扫压力控制在0.8~1.1Mpa,对于渣层厚度达50~150mm左右,吹扫压力控制在 1.1~1.5Mpa,吹扫效果十分明显,而且对水冷壁也没有吹损现象。
结论:
对于结渣强的燃煤锅炉,正确使用水力吹灰器是为维持锅炉运行的十分有效的吹扫设备,具有以下优点;
对于结渣严重的燃煤锅炉,用水力吹灰器比用蒸汽或压缩空气吹灰器效果大大有效。
合理的使用水力吹灰器,不会对水冷壁受热面造成比蒸汽吹灰更大的磨损现象。
水力吹灰器的费用比蒸汽吹灰器或压缩空气吹灰器更低。
By clicking 'Allow All', you agree to the storage of cookies on your device to enhance site navigation, analyze site usage and assist with our marketing efforts.